



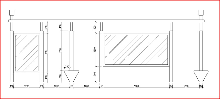
产品说明:
*顶棚采用镀锌板激光切割折边处理
*顶棚骨架采用镀锌方管
*立柱采用150*150*3mm.镀锌方管
*箱体采用1.5mm镀锌钢板折弯处理
*视窗采用6mm或8mm钢化玻璃
*箱体支撑:高强度液压杆
*表面采用高温静电喷塑处理
选配区:
*板凳:长1200*高550*凳面宽280(mm)
*照明系统:LED射灯、时间控制器、漏电保护器
*换画系统:滚动系统、铝管、控制手柄
*LED屏系统:LED屏、无线(U盘)接收器、电源
*太阳能系统:太阳能电池板、光能控制器、蓄电池
上一篇:候车亭新品推荐-37
下一篇:候车亭新品推荐-39